.jpg&w=3840&q=75&dpl=dpl_9YNMsz191LAS8SoVf9zTC3MWjBPr)
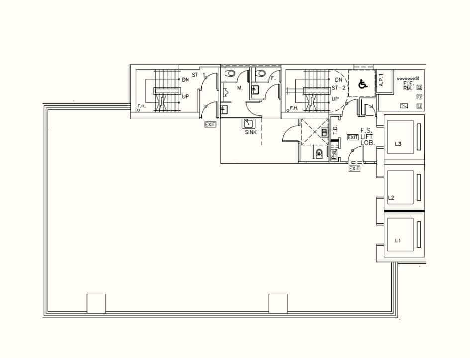
15/F - 19/F
Office Suites
Modern office suites on floors 3 to 19 offer professional, high-productivity layouts. Abundant natural light and city views create an inspiring, contemporary workspace. The ideal prestigious address for companies seeking a premium business environment.
Gross Floor Area
3,536 sq. ft.
Unit Specs & Provisions
- WC (Male, Female & Disable) within the premises
- Assigned Pantry area with Plumb and Drainage connection
- 200A TPN
- Fl to Fl Height = 4.9m
Suitable For
Technical Specs

Technical Specs
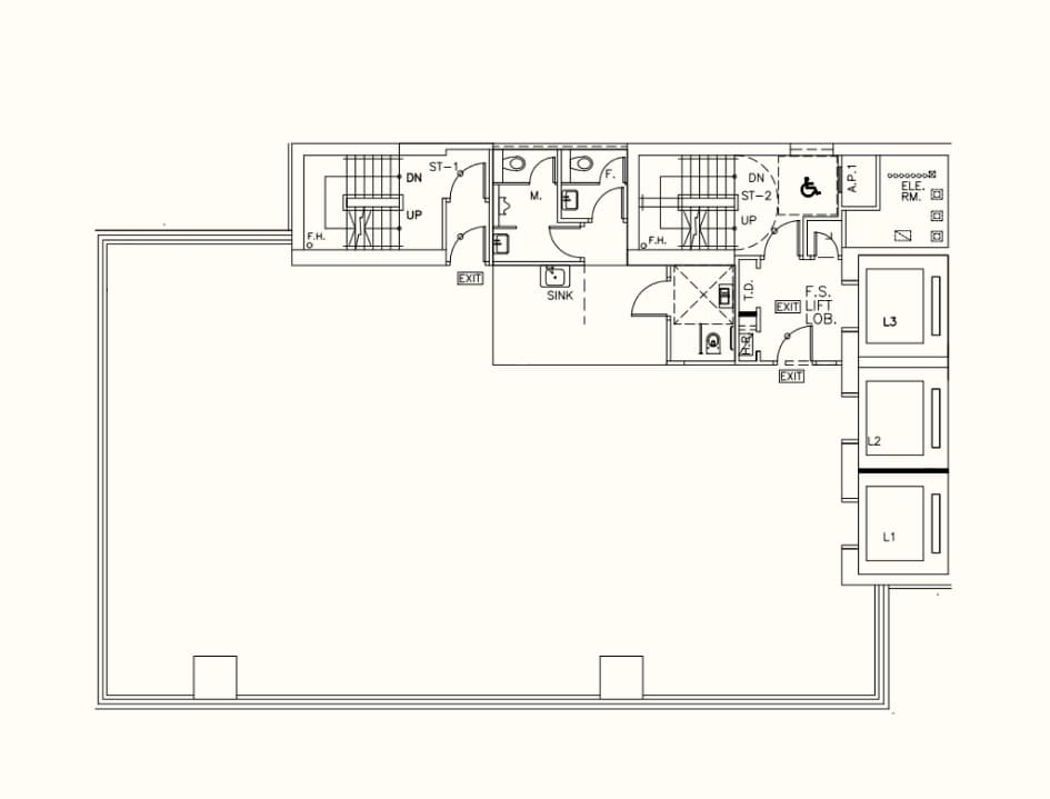
No. of Storeys
23/F (Highest Floor)
Year Completed
OP Obtained in End 2023
Owner
Single Landlord
Total GFA
58,591 ft²
Floor System
Bare Cement
A/C Supply Hour
Central A/C (Fancoils) 12Hours Daily
Mon to Fri 8:00 - 20:00
Sat 8:00 - 20:00 / Sun 8:00 - 20:00
adjustment will be expected for non-office used floor
Management & A/C Fee
Office Floor = $6.5/ft²; Non-office Floor = $8.5/ft²
Elevator
2 (Passenger)
1 (Service)
Floor to floor
4.9 (Meter)




.jpg&w=3840&q=75&dpl=dpl_9YNMsz191LAS8SoVf9zTC3MWjBPr)
