.jpg&w=3840&q=75&dpl=dpl_7MKan445ipF9TvCpbCJB9JitVb5V)
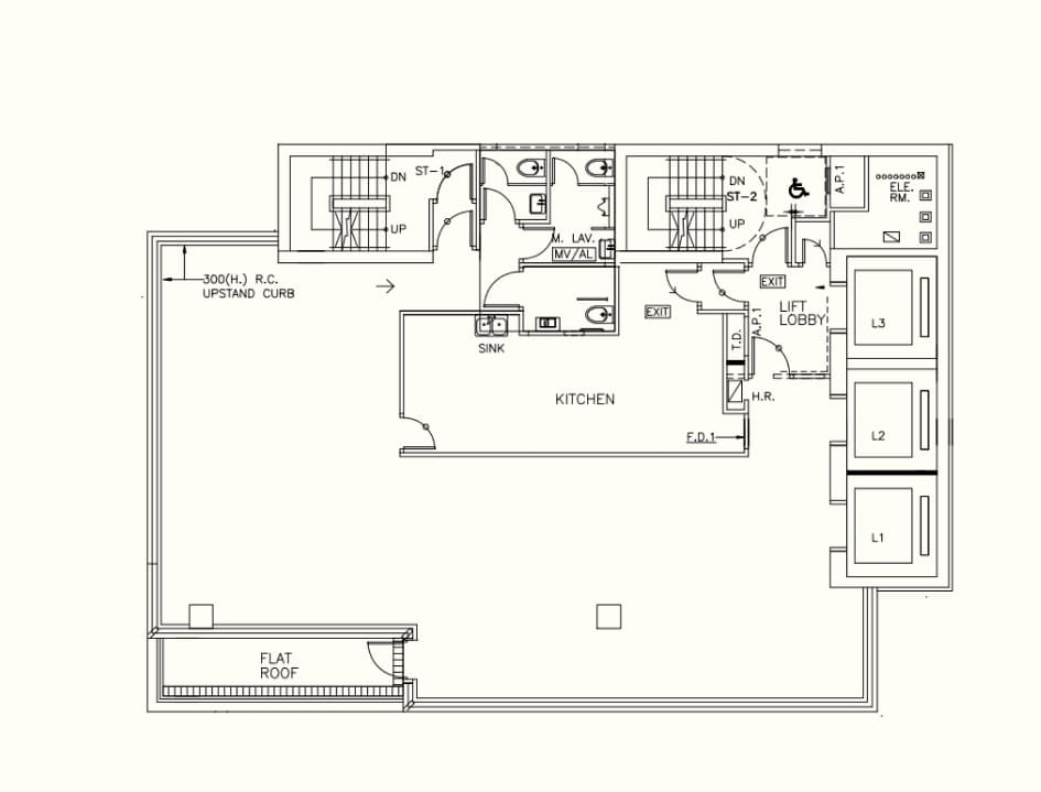
22/F
Dining Space
Elevate your brand with stylish restaurant spaces on floors 20 to 23. Flexible layouts and breathtaking views create a vibrant dining ambiance. The perfect destination for fine cuisine and memorable culinary experiences.
Gross Floor Area
2,998 sq. ft.
Unit Specs & Provisions
- WC (Male, Female & Disable) within the premises
- Assigned Pantry area with Plumb and Drainage connection
- 300A TPN
- Fl to Fl Height = 4.9m
- TGC Riser is reserved for occupants future application and connection
Suitable For
Technical Specs

Technical Specs
No. of Storeys
23/F (Highest Floor)
Year Completed
OP Obtained in End 2023
Owner
Single Landlord
Total GFA
58,591 ft²
Floor System
Bare Cement
A/C Supply Hour
Central A/C (Fancoils) 12Hours Daily
Mon to Fri 8:00 - 20:00
Sat 8:00 - 20:00 / Sun 8:00 - 20:00
adjustment will be expected for non-office used floor
Management & A/C Fee
Office Floor = $6.5/ft²; Non-office Floor = $8.5/ft²
Elevator
2 (Passenger)
1 (Service)
Floor to floor
4.9 (Meter)





