.jpg&w=3840&q=75&dpl=dpl_42okvKEsbxfWxBY3pVEdYhAty3p6)
适合用途
技术规格

技术规格
楼层数
23樓(最高樓層)
竣工年份
2023年竣工
業主
單一業主
总建筑面积
58,591平方英尺
楼板系统
清水泥面
空调供应时间
中央空调(中央盘管)每日12小时运行
周一至周五 8:00 - 20:00
周六 8:00 - 20:00 / 周日 8:00 - 20:00
办公非用途楼层的供应时间预计将需要进行调整
物业管理费及空调费
办公楼层=每平方英尺港币8.50元;
非办公楼层=每平方英尺港币8.50元
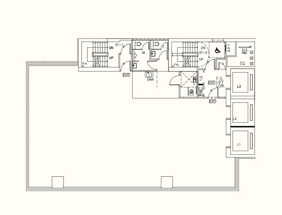
升降机
客升降机:2个
客货升降机/多用途升降机:1个
楼层间距
4.9米
物业管理
新合作物业管理公司将于稍后公布




.jpg&w=3840&q=75&dpl=dpl_42okvKEsbxfWxBY3pVEdYhAty3p6)
